ขายดาวน์คอนโด SO Origin Siriraj ห้อง Duo Space เพดานสูง ห้องสวย ราคาดี ติด MRT แยกไฟฉาย เดินแค่ 80 เมตร!

ประเภทอสังหาฯ คอนโดมิเนียม

ทดสอบ
Verified
(063) 849-5758
ลิฟท์
สวนสาธารณะ
ฟิตเนส
กล้องวงจรปิด
รปภ.
สระว่ายน้ำ
เฟอร์นิเจอร์
ระบบรักษาความปลอดภัย
เข้าชม 😲  47 ครั้ง, ประกาศเมื่อ 17 ก.ย. 2568
เขตบางกอกน้อย , จังหวัดกรุงเทพมหานคร
  • เหมาะกับผู้ป่วย/ญาติผู้ป่วยที่รักษาที่รพ.ศิริราช 
    เหมาะกับนักเรียนแพทย์/อาจารย์หมอ/พนักงานใกล้ศิริราช
  • ขายดาวน์คอนโด SO Origin Siriraj ห้อง Duo Space เพดานสูง ห้องสวย ราคาดี ติด MRT แยกไฟฉาย เดินแค่ 80 เมตร!
  •  ขายดาวน์เพียง 330,000 บาท ถูกกว่าโครงการ (ราคาพิเศษตอนเปิดตัว เม.ย. 66)
  •  รายละเอียดห้อง
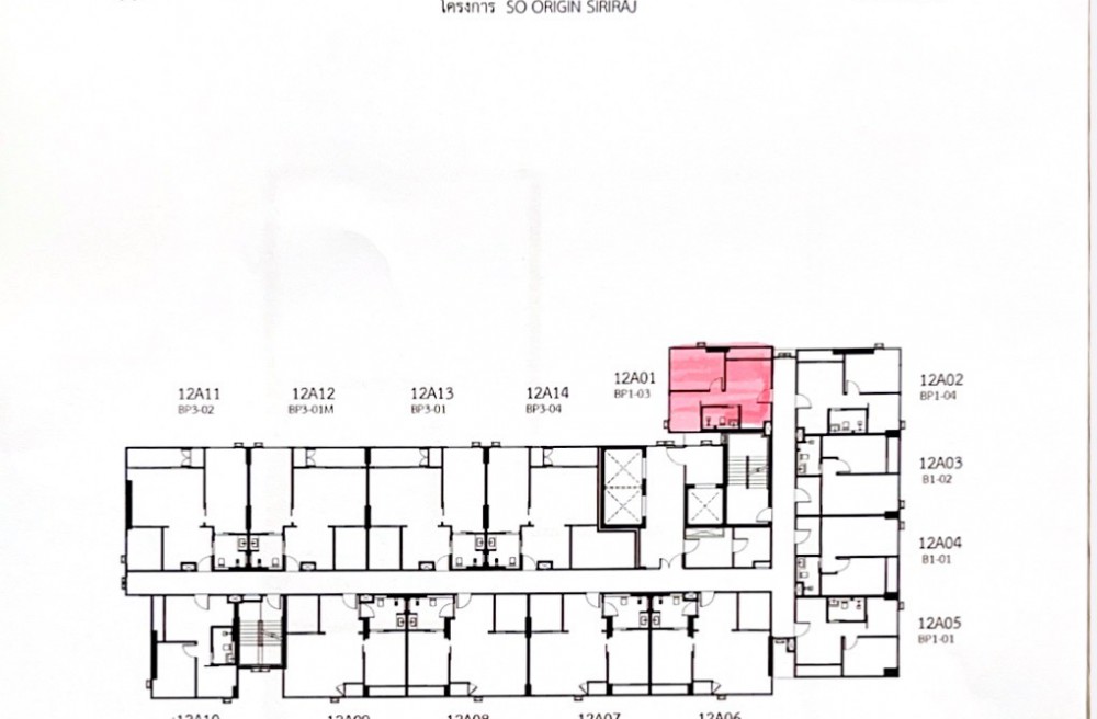
    - 1 Bedroom Plus (BP1-03) แบบ Duo Space เพดานสูง โปร่งโล่งกว่าใคร
    - ขนาด 34.90 ตร.ม.
    - ชั้น 12A (วิวทิศเหนือ รับลมเย็นทั้งปี)
    - ห้อง 12A01 Zone Park
    - ราคาหน้าสัญญา 4,202,500 บาท
    - คอนโดสร้างเสร็จ Q3 ปี 2569
  •  ทำเลสุดปัง ใกล้ศิริราช-ติด MRT-ของกินเพียบ
    - ติด MRT แยกไฟฉาย แค่ 80 เมตร
    - ใกล้โรงพยาบาลศิริราช 1.8 กม.
    - รายล้อมด้วยของกิน ของใช้ และคาเฟ่ชิคๆ ย่านฝั่งธน
  •  ส่วนกลางครบครัน สไตล์ Wellness Condo
    - สระว่ายน้ำระบบเกลือ (ดาดฟ้า)
    - ฟิตเนสวิวเมือง (ชั้น 19)
    - Co-Working Space
    - สวนลอยฟ้า
    - ระบบรักษาความปลอดภัย 24 ชั่วโมง
    - ห้องนั่งสมาธิ ห้องสปา ห้องโยคะและพิลาทิส (ชั้น 18)
  •  ของแถมและสิทธิพิเศษ
    - เฟอร์นิเจอร์ ตามมาตรฐานโครงการ
    - แอร์ Wall Type 1 เครื่อง (Daikin Inverter หรือ เทียบเท่า)
    - ครัวบิลท์อินพร้อมเตาไฟฟ้า เครื่องดูดควัน และ เตาไมโครเวฟ Build-in (ยี่ห้อ Teka หรือ เทียบเท่า)
    - Digital Door Lock (ยี่ห้อ Home Shield หรือ เทียบเท่า)
    - ฉากกั้นอาบน้ำ ตามมาตรฐานโครงการ
    - Home Automation สั่งการผ่านมือถือ
  •  ข้อมูลการผ่อนและการชำระ
    - จอง+ทำสัญญา: 50,000 บาท
    - ผ่อนดาวน์ 31 งวดแรก งวดละ 5,900 บาท
    - งวดที่ 32 ชำระ 300,000 บาท
    - ปัจจุบันผ่อนไปแล้ว 29 งวด (ถึง 5 ก.ย. 68) รวมจ่ายไปแล้ว 221,100 บาท
    - ส่วนลดพิเศษ ณ วันโอนกรรมสิทธิ์ 100,000 บาท
  • https://maps.app.goo.gl/Y2aAoawgeaWaR9vo9
  •  สนใจทักมาคุยได้ เจ้าของขายเอง (Agent ยินดีร่วมงาน)
    - โทร: 092-296-7126 (วรรณชัย)
    - Line ID: thaiwan.bu
  • #ขายดาวน์คอนโด #SOOriginSiriraj #คอนโดติดMRT #คอนโดใกล้ศิริราช #DuoSpaceเพดานสูง #คอนโดฝั่งธน #ลงทุนอสังหา

พื้นที่ : 34.9 ตร.ม

1ห้องนอน
1ห้องน้ำ
BTS แยกไฟฉาย
เขตบางกอกน้อย , จังหวัดกรุงเทพมหานคร

คำแนะนำสำหรับผู้ขาย

เราให้ผู้ประกอบการสามารถลงประกาศอสังหาฯ เช่น คอนโด บ้านเดี่ยว ทาวน์เฮ้าส์ ที่ดิน หอพัก อพาร์ทเม้นท์ อสังหาริมทรัพย์ครอบคลุมทุกประเภท สมัครสมาชิกและลงประกาศโครงการของคุณได้ฟรี

คำแนะนำสำหรับผู้เช่า

การเช่าอสังหาฯ ขึ้นอยู่กับดุลยพินิจของผู้เช่า แนะนำให้ติดต่อและขอรายละเอียดผู้ประกาศให้เช่า อสังหาริมทรัพย์ เราไม่มีส่วนเกี่ยวข้องให้การทำธุรกรรมของคุณทั้ง 2 ฝ่าย เป็นเพียงผู้ให้บริการประชาสัมพันธ์เพื่อขยายโอกาสและช่องทางให้ผู้ประกอบ การและผู้เช่าให้มากขึ้น

คำแนะนำสำหรับผู้ซื้อ

การซื้อ-ขาย อสังหาฯ ทีมงานจะตรวจสอบความถูกต้องของข้อมูลในระดับหนึ่ง ก่อนที่จะอนุมัติให้ประกาศแสดงผลบนหน้าเว็บไซต์ ซึ่งจะช่วยให้คุณได้ข้อมูลที่ถูกต้อง ทั้งนี้ทั้งนั้นคุณควรตรวจสอบข้อมูล คำแนะนำ และคำเตือนอย่างละเอียด เพื่อป้องมิจฉาชีพหรือผู้ไม่หวังดี

เกี่ยวกับเว็บไซต์

Urban.in.th เว็บไซต์อสังหาฯที่รวม คอนโด บ้านเดี่ยว ทาวน์เฮ้าส์ ที่ดิน หอพัก อพาร์ทเม้นท์ – เราเป็นศูนย์กลางข้อมูลการซื้อ ขาย ให้เช่าอสังหาริมทรัพย์ในประเทศไทย ซึ่งคุณสามารถค้นหา อสังหาฯ ที่ต้องการได้ทันที จากรายการประกาศซื้อ ขาย ให้เช่าอสังหาฯ พร้อมทั้งรูปภาพ แผนที่ วีดีโอและเอกสารอื่นได้อย่างสะดวก รวดเร็ว