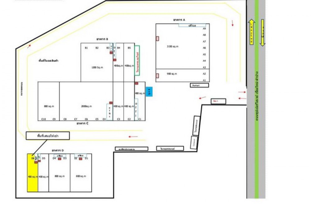
เช่าคลังสินค้า 400 ตารางเมตร พร้อมสำนักงาน ติดซุปเปอร์ไฮยเวย์เชียงใหม่-ลำปาง ตำบลมะเขือแจ้ อำเภอเมือง ลำพูน

ประเภทอสังหาฯ โกดัง/โรงงาน

ทดสอบ
Verified
(086) 542-7078
เข้าชม 😲  31 ครั้ง, ประกาศเมื่อ 26 ธ.ค. 2568
เมืองลำพูน , จังหวัดลำพูน

เช่าคลังสินค้า 400 ตารางเมตร พร้อมสำนักงาน ติดซุปเปอร์ไฮยเวย์เชียงใหม่-ลำปาง ตำบลมะเขือแจ้ อำเภอเมือง ลำพูน

รหัส TTR 2617
- คลังสินค้า 400 ตารางเมตร พร้อมสำนักงาน ติดซุปเปอร์ไฮยเวย์เชียงใหม่-ลำปาง
- ทำเลดีที่สุด เข้า-ออกสะดวก ใกล้ตัวเมืองและศูนย์กลางการขนส่ง
- ตอบโจทย์ธุรกิจขนส่งโลจิสติกส์ ศูนย์กระจายสินค้า
จัดเต็ม..สิ่งอำนวยความสะดวกครบครัน
- หลังคาภายในสูงโปร่ง สะดวกต่อการใช้งานในทุกพื้นที่
- สำนักงานและห้องน้ำในตัวอาคาร*
- เจ้าหน้าที่และระบบรักษาความปลอดภัยตลอด 24 ชั่วโมง (CCTV)
- ที่จอดรถสะดวกสบาย กว้างขวาง รองรับทุกธุรกิจ
ค่าเช่า 48,000 บาท ประกัน 2 เดือน ล่วงหน้า 1 เดือน
สนใจติดต่อ คุณต๋อย 086 - 5427078
ID:LINE 0865427078

พื้นที่ : 100 ตร.ว

เมืองลำพูน , จังหวัดลำพูน

คำแนะนำสำหรับผู้ขาย

เราให้ผู้ประกอบการสามารถลงประกาศอสังหาฯ เช่น คอนโด บ้านเดี่ยว ทาวน์เฮ้าส์ ที่ดิน หอพัก อพาร์ทเม้นท์ อสังหาริมทรัพย์ครอบคลุมทุกประเภท สมัครสมาชิกและลงประกาศโครงการของคุณได้ฟรี

คำแนะนำสำหรับผู้เช่า

การเช่าอสังหาฯ ขึ้นอยู่กับดุลยพินิจของผู้เช่า แนะนำให้ติดต่อและขอรายละเอียดผู้ประกาศให้เช่า อสังหาริมทรัพย์ เราไม่มีส่วนเกี่ยวข้องให้การทำธุรกรรมของคุณทั้ง 2 ฝ่าย เป็นเพียงผู้ให้บริการประชาสัมพันธ์เพื่อขยายโอกาสและช่องทางให้ผู้ประกอบ การและผู้เช่าให้มากขึ้น

คำแนะนำสำหรับผู้ซื้อ

การซื้อ-ขาย อสังหาฯ ทีมงานจะตรวจสอบความถูกต้องของข้อมูลในระดับหนึ่ง ก่อนที่จะอนุมัติให้ประกาศแสดงผลบนหน้าเว็บไซต์ ซึ่งจะช่วยให้คุณได้ข้อมูลที่ถูกต้อง ทั้งนี้ทั้งนั้นคุณควรตรวจสอบข้อมูล คำแนะนำ และคำเตือนอย่างละเอียด เพื่อป้องมิจฉาชีพหรือผู้ไม่หวังดี

เกี่ยวกับเว็บไซต์

Urban.in.th เว็บไซต์อสังหาฯที่รวม คอนโด บ้านเดี่ยว ทาวน์เฮ้าส์ ที่ดิน หอพัก อพาร์ทเม้นท์ – เราเป็นศูนย์กลางข้อมูลการซื้อ ขาย ให้เช่าอสังหาริมทรัพย์ในประเทศไทย ซึ่งคุณสามารถค้นหา อสังหาฯ ที่ต้องการได้ทันที จากรายการประกาศซื้อ ขาย ให้เช่าอสังหาฯ พร้อมทั้งรูปภาพ แผนที่ วีดีโอและเอกสารอื่นได้อย่างสะดวก รวดเร็ว