ขายด่วนที่ดินและสิ่งปลูกสร้างอาคาร (บิ๊กซี มหาสารคาม) 33-0-68 ไร่

ประเภทอสังหาฯ ที่ดิน

ทดสอบ
Verified
(083) 985-5551
เข้าชม 😲  26 ครั้ง, ประกาศเมื่อ 20 มี.ค. 2569
เมืองมหาสารคาม , จังหวัดมหาสารคาม

ขายด่วนที่ดินและสิ่งปลูกสร้างอาคาร (บิ๊กซี มหาสารคาม) 33-0-68 ไร่

 

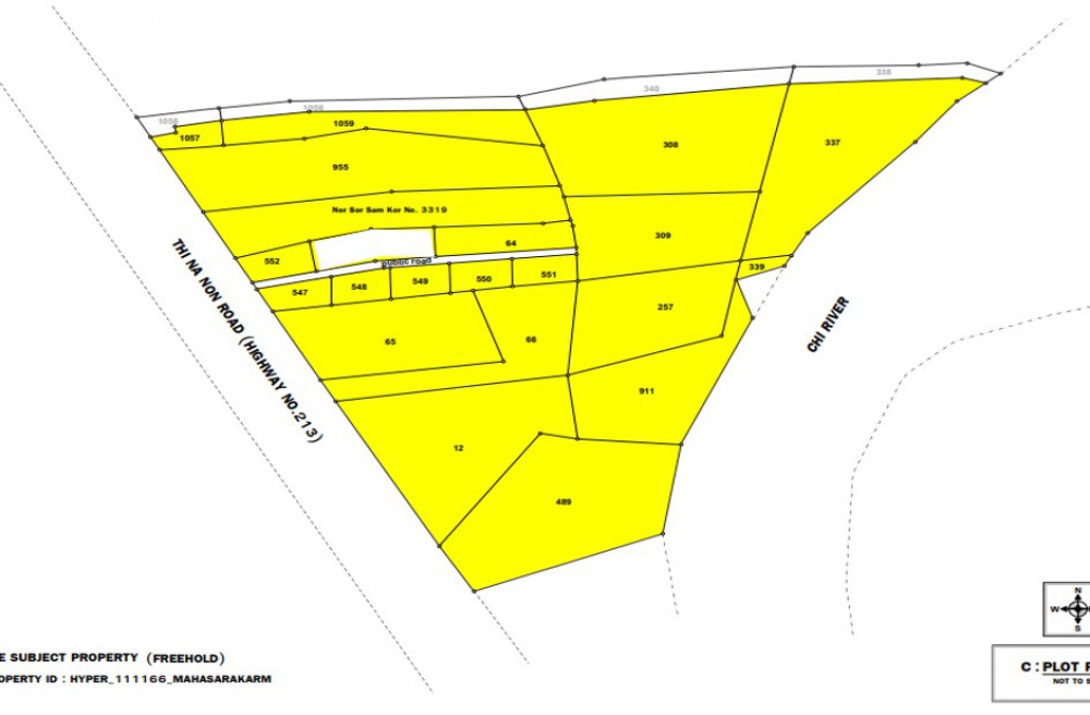
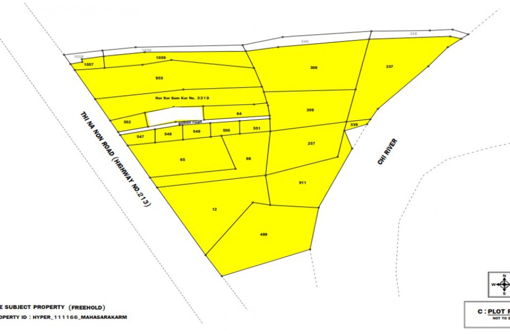
รายละเอียด>> ขายด่วนที่ดินและสิ่งปลูกสร้างอาคาร (บิ๊กซี ด่านขุนทด) ขนาด: 33-0-68 ไร่

เลขที่ 238/1-3 หมู่ที่ 11 ถ. ถีนานนท์ ตำบลเกิ้ง อำเภอเมืองมหาสารคาม มหาสารคาม 44000

ราคา: ติดต่อสอบถาม

 

Location: https://maps.app.goo.gl/Xg2fjFws55mt2vqG8 

Lat/Long: 16.222660, 103.274620

 

สนใจติดต่อ

คุณมรุวัต(เก่ง) เบอร์โทร 0800456986

พื้นที่ : 33ไร่ 68ตรว.

เมืองมหาสารคาม , จังหวัดมหาสารคาม

คำแนะนำสำหรับผู้ขาย

เราให้ผู้ประกอบการสามารถลงประกาศอสังหาฯ เช่น คอนโด บ้านเดี่ยว ทาวน์เฮ้าส์ ที่ดิน หอพัก อพาร์ทเม้นท์ อสังหาริมทรัพย์ครอบคลุมทุกประเภท สมัครสมาชิกและลงประกาศโครงการของคุณได้ฟรี

คำแนะนำสำหรับผู้เช่า

การเช่าอสังหาฯ ขึ้นอยู่กับดุลยพินิจของผู้เช่า แนะนำให้ติดต่อและขอรายละเอียดผู้ประกาศให้เช่า อสังหาริมทรัพย์ เราไม่มีส่วนเกี่ยวข้องให้การทำธุรกรรมของคุณทั้ง 2 ฝ่าย เป็นเพียงผู้ให้บริการประชาสัมพันธ์เพื่อขยายโอกาสและช่องทางให้ผู้ประกอบ การและผู้เช่าให้มากขึ้น

คำแนะนำสำหรับผู้ซื้อ

การซื้อ-ขาย อสังหาฯ ทีมงานจะตรวจสอบความถูกต้องของข้อมูลในระดับหนึ่ง ก่อนที่จะอนุมัติให้ประกาศแสดงผลบนหน้าเว็บไซต์ ซึ่งจะช่วยให้คุณได้ข้อมูลที่ถูกต้อง ทั้งนี้ทั้งนั้นคุณควรตรวจสอบข้อมูล คำแนะนำ และคำเตือนอย่างละเอียด เพื่อป้องมิจฉาชีพหรือผู้ไม่หวังดี

เกี่ยวกับเว็บไซต์

Urban.in.th เว็บไซต์อสังหาฯที่รวม คอนโด บ้านเดี่ยว ทาวน์เฮ้าส์ ที่ดิน หอพัก อพาร์ทเม้นท์ – เราเป็นศูนย์กลางข้อมูลการซื้อ ขาย ให้เช่าอสังหาริมทรัพย์ในประเทศไทย ซึ่งคุณสามารถค้นหา อสังหาฯ ที่ต้องการได้ทันที จากรายการประกาศซื้อ ขาย ให้เช่าอสังหาฯ พร้อมทั้งรูปภาพ แผนที่ วีดีโอและเอกสารอื่นได้อย่างสะดวก รวดเร็ว