ให้เช่าโฮมออฟฟิศ 3 ชั้นสร้างใหม่ดีไซน์เรียบหรู 115 ตรว. 500 ตรม. ย่านหัวหมาก รามคำแหง ศรีนครินทร์ ใกล้รถไฟฟ้าสายสีเหลือง สถานีศรีกรีฑา

ประเภทอสังหาฯ ตึกแถว/อาคารพาณิชย์

ทดสอบ
Verified
(094) 282-3961
เข้าชม 😲  9 ครั้ง, ประกาศเมื่อ 21 เม.ย. 2569
เขตบางกะปิ , จังหวัดกรุงเทพมหานคร

ให้เช่าโฮมออฟฟิศ 3 ชั้นสร้างใหม่ดีไซน์เรียบหรู 115 ตรว. 500 ตรม. ย่านหัวหมาก รามคำแหง ศรีนครินทร์ ใกล้รถไฟฟ้าสายสีเหลือง สถานีศรีกรีฑา

*** ราคาเช่า 189,000 บาท/เดือน/หลัง
*กำหนดสร้างเสร็จ ช่วงปลายเดือนพฤษภาคม 2569 นัดดูวางจองก่อนได้**

ติดต่อ:: ชยา โทร/ID Line:: 0942823961
Link Line:: https://line.me/ti/p/3xFA1An8Kc
รหัส# T26-562

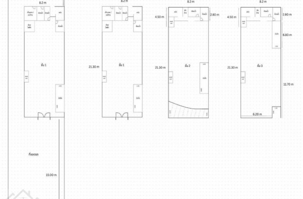
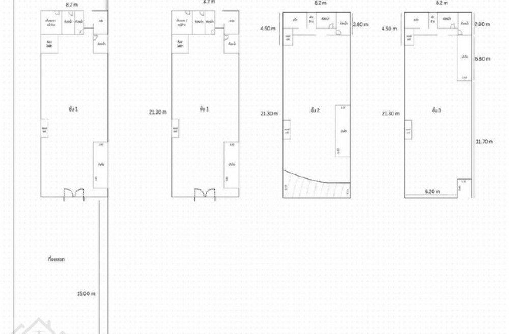
• ออฟฟิศ 3 ชั้น สร้างใหม่ดีไซน์เรียบหรู จำนวน 2 หลัง ซอยหัวหมาก 10 (รามคำแหง 44)
• โดดเด่นเหมาะกับเทรนด์ยุคใหม่ โครงการใหม่ ไม่เคยเข้าอยู่
• ที่ดิน 115 ตารางวา/หลัง
• พื้นที่ใช้สอย 500 ตรม /หลัง
• อาคาร หน้ากว้าง ประมาณ 8 ม. ยาว 21 ม.
• 6 ห้องน้ำ
• ห้องแม่บ้าน + ห้องน้ำ
• แแอร์ 9 เครื่อง/ หลัง (ชั้นละ 3 เครื่อง)
• จอดรถ 5 - 6 คัน

สถานที่ใกล้เคียง
• รถไฟฟ้าสายสีเหลือง สถานีศรีกรีฑา
• Airport Link สถานีหัวหมาก
• ทางด่วนศรีรัช, มอเตอร์เวย์
• รพ.สมิติเวช ศรีนครินทร์
• สนามกอล์ฟ Unico
• ABAC , ม.รามคำแหง, กกท.

*กำหนดสร้างเสร็จ ช่วงปลายเดือนพฤษภาคม 2569 นัดดูวางจองก่อนได้**

*** ราคาเช่า 189,000 บาท/เดือน/อาคาร มัดจำ 3 เดือน ล่วงหน้า 1 เดือน สัญญาขั้นต่ำ 3 ปี

ที่ตั้ง:: ซอยหัวหมาก 10 (รามคำแหง 44) แขวงหัวหมาก เขตบางกะปี กทม 10240

#PL. Real Estate Broker
บริการรับฝากขาย / เช่า / จัดหา คอนโด บ้าน ที่ดิน อสังหาริมทรัพย์ทุกชนิด

พื้นที่ : 115 ตร.ว

1ห้องนอน
6ห้องน้ำ
เขตบางกะปิ , จังหวัดกรุงเทพมหานคร

คำแนะนำสำหรับผู้ขาย

เราให้ผู้ประกอบการสามารถลงประกาศอสังหาฯ เช่น คอนโด บ้านเดี่ยว ทาวน์เฮ้าส์ ที่ดิน หอพัก อพาร์ทเม้นท์ อสังหาริมทรัพย์ครอบคลุมทุกประเภท สมัครสมาชิกและลงประกาศโครงการของคุณได้ฟรี

คำแนะนำสำหรับผู้เช่า

การเช่าอสังหาฯ ขึ้นอยู่กับดุลยพินิจของผู้เช่า แนะนำให้ติดต่อและขอรายละเอียดผู้ประกาศให้เช่า อสังหาริมทรัพย์ เราไม่มีส่วนเกี่ยวข้องให้การทำธุรกรรมของคุณทั้ง 2 ฝ่าย เป็นเพียงผู้ให้บริการประชาสัมพันธ์เพื่อขยายโอกาสและช่องทางให้ผู้ประกอบ การและผู้เช่าให้มากขึ้น

คำแนะนำสำหรับผู้ซื้อ

การซื้อ-ขาย อสังหาฯ ทีมงานจะตรวจสอบความถูกต้องของข้อมูลในระดับหนึ่ง ก่อนที่จะอนุมัติให้ประกาศแสดงผลบนหน้าเว็บไซต์ ซึ่งจะช่วยให้คุณได้ข้อมูลที่ถูกต้อง ทั้งนี้ทั้งนั้นคุณควรตรวจสอบข้อมูล คำแนะนำ และคำเตือนอย่างละเอียด เพื่อป้องมิจฉาชีพหรือผู้ไม่หวังดี

เกี่ยวกับเว็บไซต์

Urban.in.th เว็บไซต์อสังหาฯที่รวม คอนโด บ้านเดี่ยว ทาวน์เฮ้าส์ ที่ดิน หอพัก อพาร์ทเม้นท์ – เราเป็นศูนย์กลางข้อมูลการซื้อ ขาย ให้เช่าอสังหาริมทรัพย์ในประเทศไทย ซึ่งคุณสามารถค้นหา อสังหาฯ ที่ต้องการได้ทันที จากรายการประกาศซื้อ ขาย ให้เช่าอสังหาฯ พร้อมทั้งรูปภาพ แผนที่ วีดีโอและเอกสารอื่นได้อย่างสะดวก รวดเร็ว